- 房源介绍
-
【Bayview Valley】
Bayview Valley位于列治文山位市尊貴地段Bayview / Elgin Mills,是由著名的开发商Kalexia Developments 开发的典雅豪华镇屋。建筑以浪漫风格立意,形成建筑在视觉上的统一;简约与华丽的强烈的对比,更加丰富了视觉效果。
除了建筑之美,Bayview Valley还有顶级的人性化设计和服务,为您的方方面面考虑周全,给您带来绝无仅有的住宅体验。以下三点贴心设计,必将成为你未来生活不可获取的幸福源泉:
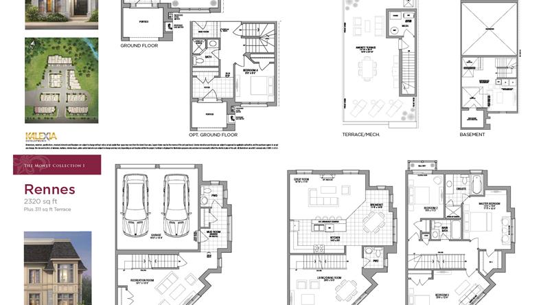
1. 双车库的镇屋
开车是加拿大的一种生活方式,或是驰骋在路上跨越山和大海;或是每天上班接送小孩老人。然而如果车位不够,想到每天回家要做的第一件事不是感受家的温馨,而是四处打转找车位,很可能让这种惬意大打折扣。双车库的镇屋实属难得,然而Bayview Valley的双车库镇屋却可以为您解决后顾之忧,两个宽敞车库保证您的爱车有绝对足够的空间停放,一个负责去诗意的远方,一个负责家庭的责任,不怕风吹日晒,无需冬日铲雪,让您回家的第一件事是分享精彩一天。
2. 顶楼露天巨大花园
世界上最好的东西都是免费的,比如和煦的阳光,明朗的天空和清新的空气,然而免费的东西往往也是最难得的。但如果您住在Bayview Valley,那这些美好都触手可及。Bayview Valley镇屋自带顶楼巨大花园,让您在家也能享受世界上最美好的馈赠,尊享高品质生活。不时还可以邀请好友小聚,在自家的巨型阳花园,品茗看书,望烟花绽放,把酒言欢,畅享人生。
3. 部分单元背对树林
高楼水泥也许是大部分人居住的地方,然而自然才是心之神往之地。Bayview Valley做到了让您在城市和森林之间自由切换。镇屋背后绿意盎然的树林成为天然屏障,形成自由氧吧,让你在户外漫步时放松心灵。家庭可以带着孩子在周末一起散步,寻找春天的第一朵花,认识秋天的各色落叶,在孩子的成长中增加陪伴互动。
【豪华室内】
全屋9英尺高天花板,精致的天然橡木楼梯,主楼层和二楼配备高品质硬木地板(不包括瓷砖区域和卧室),优质耐用的不锈钢厨房电器(仅限炉灶,冰箱和洗碗机),石英厨房台面,方形抛光边缘,时尚设计师款厨房后挡板,高品质洗衣机和烘干机,中央空调,给您全年舒适保证。
【交通便捷】
Bayview Valley 具有绝佳的地址优势,公共交通便捷,轻松进入404高速公路,5分钟车程到达GO火车站,并且周围名校林立,且靠近Richmond Green等公园,让您在动与静之间,谱写出最完美的生活协奏曲。
【生活舒适】
Richmond Hill(列治文山)地理优越、工商繁华、社区优美,学校精良。附近拥有大型商场包括(Home Depot,Walmart,Costco,Staples,各大超市等等)。向西5分钟车程更有最大的社区活动中心Richmond Green Community Center(瑜伽馆,武术馆,健身房,舞蹈学院,曲棍球场,游泳馆 etc.)
【学校精良】
Bayview Valley附近有多家知名学校,包括Bayview Hill、Bayview Green、Bayview Secondary School、Silver Stream等,还有Century Private School、Richmond Hill Montessori & Elementary Private School等私立学校可供选择。学校排名高,师资力量雄厚,让孩子在读大学时省钱省力,还能融入当地人的生活圈子,培养良好的性格和习惯。
【著名开发商-Kalexia Developments】
Kalexia 多年来在家庭建筑和土地开发方面有着专业技术和卓越成就。该团队在住宅设计和施工方面拥有多年的经验,曾与很多开发商合作在GTA建造新住宅。
Kalexia 以创建适合当今买家的智能化需求的家庭和社区而自豪,无论客人们在寻找自己第一个家还是更换更加理想的房子,Kalexia 可以给他们想要的一切。
该公司的高级管理层与公私合营伙伴合作,成功完成了数十项发展。Kalexia汇集了一系列互补的房地产学科,并致力于建设各种形式的卓越建筑。他们致力于高质量的工艺,建设清洁绿色和贴心的客户服务。
-
公立 小学 菲沙评级:7.5 排名:519/2900
学校网址: 电话:(905) 882-4480
-
公立 小学 菲沙评级:7.5 排名:770/3064
学校网址: 电话:905-882-4480
-
Sixteenth Avenue Public School
公立 小学 菲沙评级:7.1 排名:640/3064
学校网址: 电话:905-884-5598

