- 房源介绍
-
万锦【Victory Green】优质校区房
无管理费镇屋/独立屋项目热卖中
镇屋单位$95万起,独立屋单位$1.3M起地理位置
Victory Green坐落在万锦Middlefield Road和14th Avenue的交界处,附近生活设施一应俱全,例如楼下就是公交车站,旁边的各类餐厅,超市,商场,银行,高尔夫俱乐部等等。周围还有多家中小学校、日托等等,可以说Victory Green是相当不错的学区房。
-步行2分钟即达大型Plaza,有餐厅、超市、银行等等
-步行8分钟即达Middlefield Collegiate Institute
-开车2两分钟即达Cresthaven Golf Club高尔夫俱乐部
-开车2分钟即达Coppard Glen Public School
-开车3分钟即达Markham Sports Dome Inc运动场
-开车4分钟即达CF Markville商场
-开车6分钟即达Camp Chimo公园
-开车6分钟即达Markham Village Library图书馆
-开车7分钟即达Markham Green Golf Club高尔夫俱乐部
-开车10分钟即达Milliken Go火车站
楼盘信息详情
项目名称| Victory Green 具体地址| 5685 14th Ave, Markham 交叉路口| Middlefield Road & 14th Avenue 户型单位| 镇屋/独立屋 开发商| Fulton Group 付款方式 详情请联系多伦多楼花销售冠军冯山,您的置业好靠山!更多资讯、更优价格、更好楼盘!请联系:647-806-8188(国,粤,英皆可)更多详情,请联系微信: fengshanxiaohao
带你了解万锦
万锦市是安大略省发展最为迅速的城市之一,IBM、AMD、飞利浦、东芝、摩托罗拉、朗讯、苹果、美国运通在内的860多家高科技公司,其中有400多家公司的总部设在该市,所以万锦被誉为“加拿大高科技之都”
万锦社区环境优美,境内拥有众多河流与自然生态公园。万锦市政府更规定市内35%的绿地被保留不允许用于城市土地开发。穿过万锦北部的Oak Ridge(橡树岭地带)就是安大略省非常著名的自然遗产和绿色生态系统。钻石开发商
Victory Green 由著名开发商Fulton Group负责开发。Fulton Group的业务是致力于开发卓越的家庭住宅,他们对经手的所有项目都充满热情,无论是建造新房还是设计新社区。并且,房屋质量和归属感始终是Fulton Group最在意的部分,所以他们才会在业界屡获殊荣。
室内图赏析
详情请联系多伦多楼花销售冠军冯山,您的置业好靠山!更多资讯、更优价格、更好楼盘!请联系:647-806-8188(国,粤,英皆可)更多详情,请联系微信: fengshanxiaohao
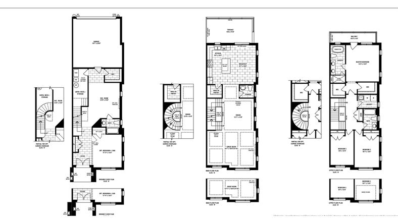
户型图赏析
-
Middlefield Collegiate Institute
公立 中学 菲沙评级:8.6 排名:27/740
学校网址: 电话:905-472-8900
-
公立 小学 菲沙评级:6.7 排名:503/3064
学校网址: 电话:905-471-0419
-
公立 小学 菲沙评级:6.7 排名:1056/2900
学校网址: 电话:(905) 471-0419

