- 房源介绍
-
地处多伦多东部Ajax的全新无管理费镇屋Hunters Crossing抢先开盘啦!
【楼盘名称】Hunters Crossing
【开发商】Stafford Homes
【地址】167 Hunt St, Ajax
【交叉路口】Hunt St / Monarch Ave
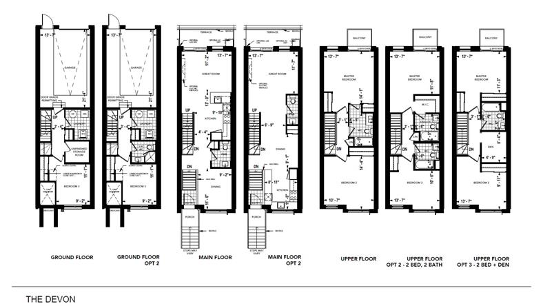
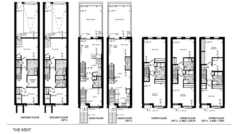
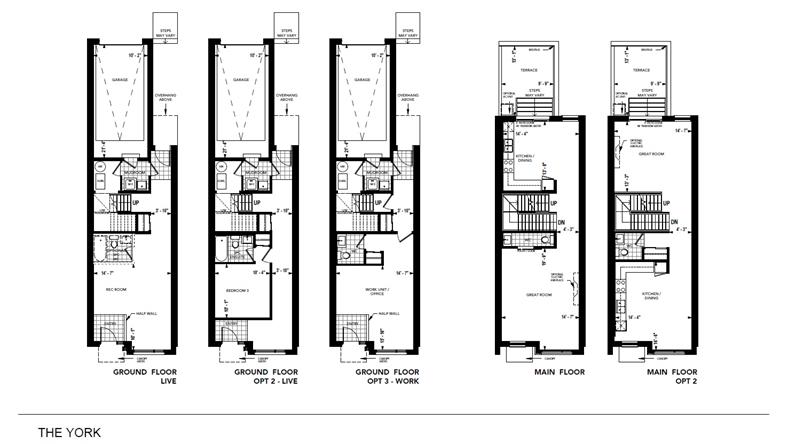
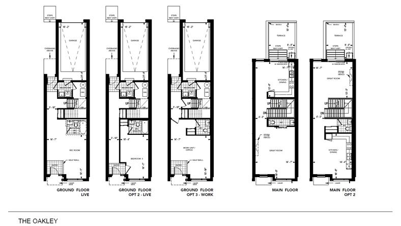
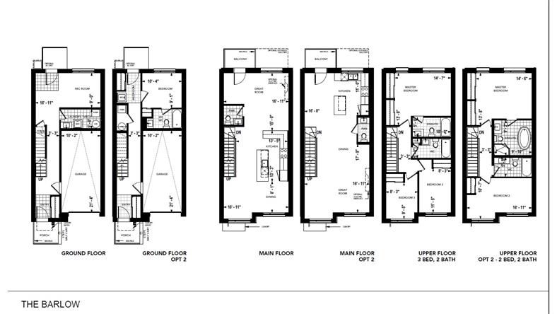
【类型】三层无管理费镇屋
【单元】仅111个单元
【价格】70万-90万
【交房日期】预计2023年
楼盘亮点
Hunters Crossing是由知名开发商Stafford Homes推出的全新无管理费镇屋项目,位于Ajax的中心地带Hunt St和Monarch Ave。邻近401高速,周边有餐饮,超市,购物,娱乐场所等,公交网络完善,交通便利,生活方便,性价比无敌。
* 步行20分钟,6分钟自行车,或4分钟车程可到Go Station
* 3分钟可上401高速,轻松前往多伦多市中心和GTA
* 4分钟至Ajax社区中心
* 7分钟至湖边Waterfront
名开发商
拥有50多年历史的Stafford Homes被认为是多伦多最具经验的开发商之一,一贯以高质、高效而闻名。 他们在创造高利用率居住空间,并达到最高标准的同时赢得了行业的多个奖项。
请立即致电获取最优价格:
百年皇家地产公司,白金/总统大奖得主:刘君
电话:416-455-8890/微信:junl101
多伦多房产一览:www.junliuhome.com
-
St. Bernadette Catholic School
天主教徒 小学 菲沙评级:5.8 排名:1719/2900
学校网址: 电话:(905) 683-0571
-
天主教徒 小学 菲沙评级:5.8 排名:1488/3064
学校网址: 电话:905-683-0571
-
公立 小学 菲沙评级:6.5 排名:1887/3064
学校网址: 电话:905-683-6240

