房源详细
- 房源介绍
-
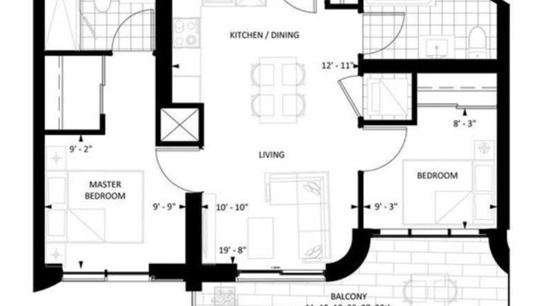
使用面积:600-699 平尺,地税:$0.00/2022
房型:公寓,朝向:东南,楼层:19
Dufferin/Dupont,M6H2H6
2卧2卫,1厨房
中央空调, 燃气强制空气加热取暖
管理费:$408.70/月
商业楼改建公寓楼花!位于一个全新的,充满活力的优质社区,拥有30万平尺零售店区和公共便利设施,预计2025年完工。开发商为Elad Canada,建筑商为Hariri Pontarini Architects。室内9尺楼底。附近有Dupont新艺术馆,餐馆,酒吧,咖啡厅,投资潜力巨大,深受多伦多人青睐。
详细信息以及更多房源请致电:
百年皇家地产公司,白金/总统大奖得主:刘君
电话:416-455-8890/微信:junl101
多伦多房产一览:www.junliuhome.com
- 房间构成
-
房间名称房间数量
- 配套设施
学校信息
-
Regal Road Junior Public School
公立 小学 菲沙评级:6.2 排名:1430/2900
学校网址: 电话:4163931390
-
Regal Road Junior Public School
公立 小学 菲沙评级:6.2 排名:1563/3064
学校网址: 电话:416-393-1390
-
天主教徒 中学 菲沙评级:4.5 排名:612/740
学校网址: 电话:416-393-5511
税费解析
- 所缴税项
-
律师费 约CAD 800住宅检查费 约CAD 150管理费 约CAD 1100其他费用 约CAD 1300
-
物业税 约CAD 8990土地转让税 约CAD 17980土地转让税减免 约CAD 6475
注:税费解析所示所缴税项、所需费用仅供参考,详细请咨询经纪。

